西门子1200各模块EPLAN模版 点击:197 | 回复:1



花妞的守护神

    
  • 精华:0帖
  • 求助:0帖
  • 帖子:25帖 | 83回
  • 年度积分:82
  • 历史总积分:833
  • 注册:2013年4月11日
发表于:2025-12-16 11:00:59
楼主

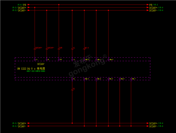
西门子1200各模块EPLAN模版,使用EPLAN2.9编辑,可直接用EPLAN2.9及以上版本打开,直接复制可用,以下是部分截图


正在下载,请等待……
下载附件需3积分!

1分不嫌少!


楼主最近还看过

1122323

  • 精华:0帖
  • 求助:1帖
  • 帖子:8帖 | 83回
  • 年度积分:0
  • 历史总积分:181
  • 注册:2013年7月13日
发表于:2025-12-23 21:12:29
1楼

感谢分享

回复本条

    

热门招聘
相关主题

官方公众号

智造工程师